Перейти к основному содержанию
Дизайн интерьера
класса премиум
Toggle navigation
Меню Heder
Проекты
Интерьеры
Архитектура
Стоимость
Ещё
Отзывы
Видео
Блог
Курсы
Контакты
Главная
Интерьеры
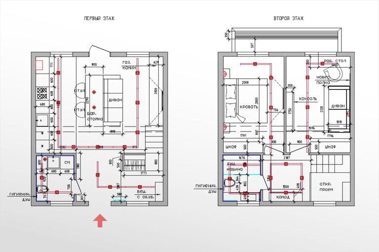
Таунхаус, Онегин Парк
Таунхаус, Онегин Парк
Schastye — 78m
Жилой комплекс проекта
Другие популярные проекты
Мы используем cookies для улучшения работы сайта.
Подробнее
.
Принять
Принять