Создать интерьер, в котором ты ощущает свежесть хвойного лес и тепло летнего солнца, не так просто, но наша студия смогла это сделать. Обстановка насыщена контрастами цветов и незамысловатостью форм. Интерьер приближен к природе, благодаря наполнению пространство материалами натурального происхождения, но в тоже время сохраняется атмосфера уютного и родного дома.
- Зонирование напольным покрытием
- Окно внутри квартиры
- Компенсируем недостатки геометрии
- Еще одна идея для гардеробной
Зонирование напольным покрытием
Входная зона является одной из самых марких и быстро загрязняемых мест в доме. По приходу домой именно там мы оставляем грязную уличную обувь, сумки и зонтик, с которого на пол стекают дождевые капли. Именно поэтому в прихожей лучше использовать менее маркие материалы, которые готовы к обилию влаги и просты в уборке. Идеальным вариантом является — плитка.

При использовании в прихожей плитки нередко возникает вопрос, как оформить переход к другому напольному покрытию. Если в случае с кухней или санузлом резкий переход выглядит уместно, то на стыке прихожей и гостиной это не всегда так. Дизайнер предложил использовать шестиугольную плитку для создания нервной границы, делая переход из одной зоны в другую плавным и ненавязчивым. Не маркий серый цвет разбавляет вставки изумрудного керамогранита, который является основным цветом в интерьере. Еще одна связующая нить с общей концепцией квартиры это — геометрические формы, задействованные во всей обстановке.
Зонирование напольным покрытием
Уже привычно считать, что окно — элемент, связующий интерьер и внешний мир. В этом проекте мы пошли дальше и установили окно между кухней и гостиной. Это решение позволило создать два самостоятельных пространства, которые при желании можно частично объединить.

Кухня более воздушное и легкое пространство, в основном за счет стен и кухонного гарнитура оформлены в светлых тонах. Обеденная группа также выдержана в спокойном сером цвете. Таким образом акцентом пространства становится изумрудный фартук с геометрическим рисунком и барная стойка из натурального дерева, которая располагается вдоль межкомнатного окна.

Гостиная является более насыщенным и динамичным пространством. Изумрудный диван, приставной столик из слэба, фактурная кирпичная стена, реечная система и стабилизированный мох — звучит как набор дизайнерских приемов, но все это умещается в одной гостиной. Все элементы дополняют или выделяют друг друга, таким образом пространство яркое, броское и удобное для жизни.

Компенсируем недостатки геометрии
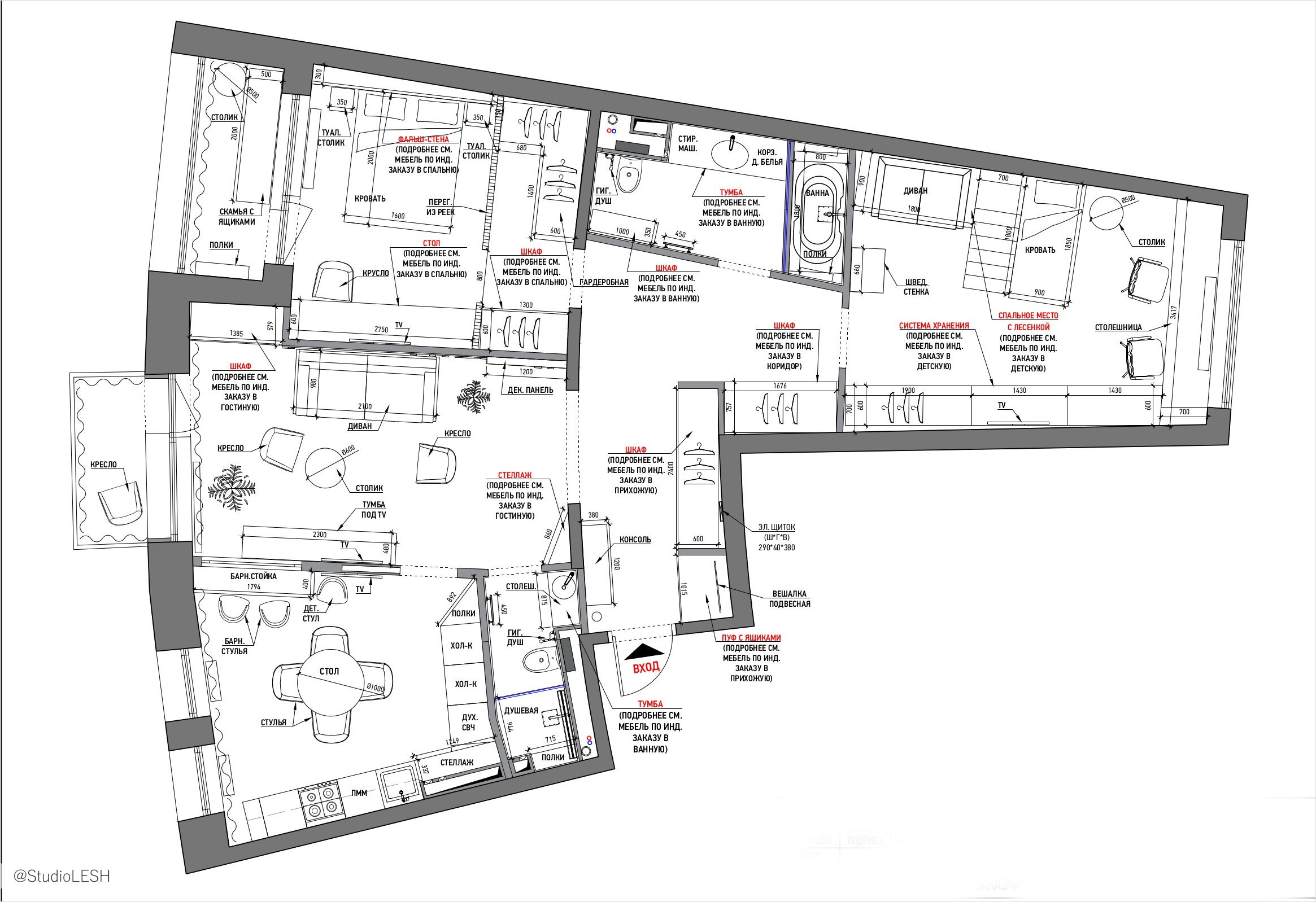
Помещение представляет собой квартиру площадью 100 м кв с радиальной планировкой. Одной из главных задач было создать максимально функциональны комнаты для проживания всей семьи. Главной проблемой являлась сложная геометрия помещений.

Решение было максимально простое — шкафы. Пустующие ниши, кривые стены и сложные пространственные решения обыграли установкой разноплановых систем хранения. Таким образом мы смогли обеспечить семью достаточным количеством шкафов и компенсировать геометрию квартиры. Все системы хранения изготовлены под заказ с учетом всех особенностей пространства, чтобы идеально соответствовать авторской задумке дизайнера.

Еще одна идея для гардеробной
Отдельная гардеробная решает множество проблем с хранением вещей, если, конечно, есть место для самой гардеробной. На этот случай интернет подскажет множество решений и одним из них мы хотели бы поделится сейчас. Возводить дополнительные стены и тем самым терять драгоценные метры спальни или любой другой комнаты для создания гардеробной, не лучший вариант. Межкомнатные перегородки, а в данном случае реечная система, вот выход.

Использование элементов из дерева поддерживает композицию квартиры, объединяя пространства единой тематикой. А применение деревянных реечных перегородок дает возможность для плавного разделения зон уютно спальни и вместительной гардеробной. Рейки отлично пропускают естественный свет, что сохраняет пространство живым. За счет встроенного зеркального шкафа гардеробная кажется больше и просторнее.


