Инициатива — это хорошо особенно, если речь идет о улучшении своего дома, но ее не всегда хватает, чтобы воплотить свои задумку в жизнь. С этой проблемой столкнулись наши заказчики с интерьером новой квартиры в центре Москвы. Новостройка 96 м кв стала чистым листом для воплощения всех идей семьи. Идей и времени было много, но скоро начались первые сложности, которые и привели заказчиков к нам.
Большое изобилие идей и не знание с чего начать подтолкнули клиентов к принятию решения о поиске дизайнера. Совместная работа началась с определения стилистического направления будущего интерьера, им стало смешение современной классики и арт-деко. Аристократичность присущая классическому стилю нравилась клиентам, при этом они были готовы к чему-то интересному и новому для них, но в приемлемых границах. Также было принято решение использовать в отделке комбинации материалов из стекла и светлого дерева. Общая светлая отделка будет дополняется оттенками синего и бежевого.

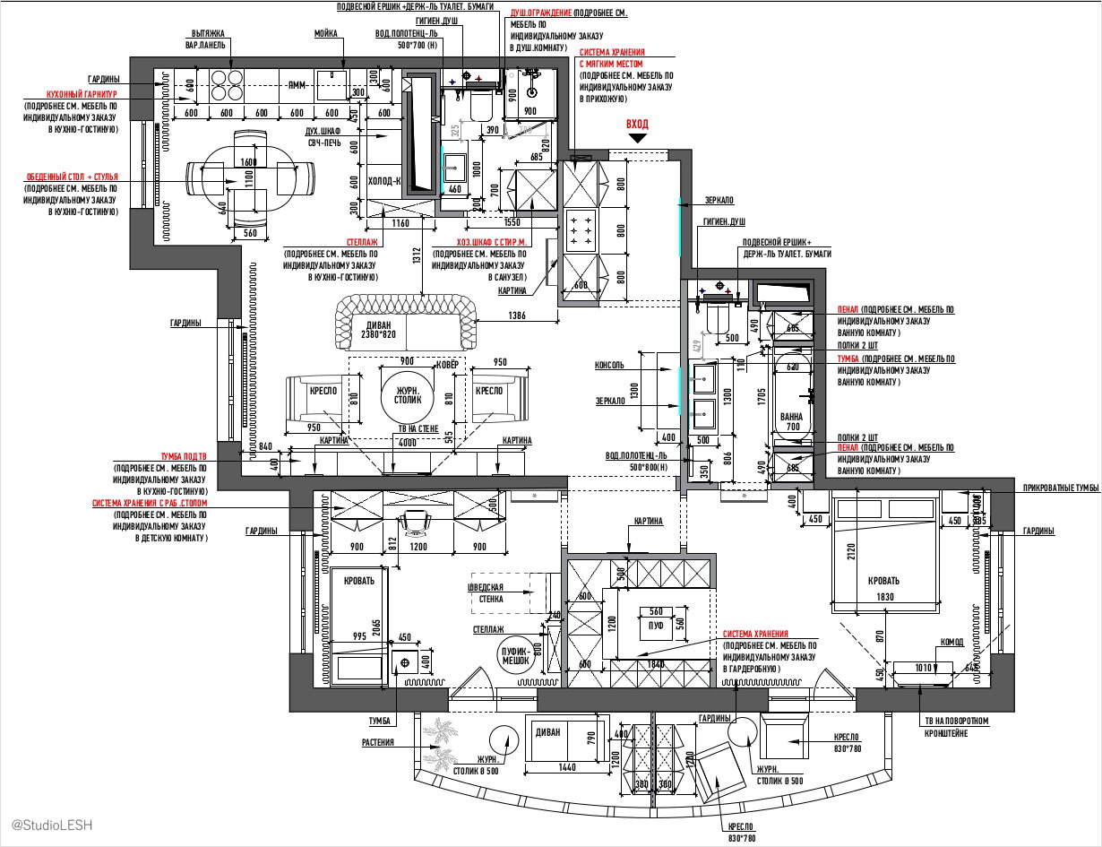
В этом проекте мы делали планировочное решение с нуля. Застройщик предоставлял квартиру со свободной планировкой, отсутствием внутренних перегородок. После общения с заказчиками было решено обустроить следующие комнаты: большая кухня-гостиная, ванная комната и гостевой санузел, спальня родителей с гардеробной, комната для ребенка.

Прихожая — первое помещение, что встречает всех гостей, выглядит дорого и изысканно. Несколько шкафов со встроенными зеркалами отлично вмещают всю верхнюю одежду. Зона прихожей лишена естественно освещения, дизайнер компенсировал это за счет светлой цветовой гаммы, обилия зеркал и светового сценария. Как продолжение помещения дальше установлена консоль с большим зеркалом, таким образом прихожая выглядит длиннее и плавно переходит в гостиную.
Центр композиции гостиной — темно-синий диван из мягкой ткани. Стеклянный журнальный столик на необычной ножке, легкое и оригинальное дополнение зоны отдыха. ТВ зона оформлена в белом лаконичном цвете с применением системы напольных стеллажей, чтобы задействовать площадь и не нагромождать помещение. Все источники света имеют изысканный дизайн, что способствует созданию атмосферы роскоши и красоты.

Тепло-серый кухонный гарнитур в классическом стиле является главным акцентом на кухне. Светлая столешница с имитацией камня оттеняет легкость гарнитура. В качестве декоративного элемента выступают молдинги и зеркальные фасады с узором, они поддерживают общую концепцию квартиры и являются отличительной чертой кухни. Вся кухонная техника скрыта в коробе, таким образом у нас создается ощущение монолитной стены, что способствует созданию гармонии в пространстве.
Массивный обеденный стол из дерева в лучших классических и современном исполнении является идеальным местом для ужинов всей семьей. Дизайнер подобрал к столу большие мягкие стулья, чтобы поддержать баланс в мебели. Мягкие тканевые сидения гармонично сочетаются с текстилем штор и помогают в объединении столовой группы, кухни и гостиной.

Цветовое решение в спальне соответствует решению гостиной. Большая светлая кровать с мягким изголовьем на фоне акцентной темно-синей стены. Корпусная мебель вся светлая с золотыми металлическими элементами. Золото в мебели перекликается с отделкой светильников, все источники света имеют утонченный дизайн.

Заказчики остались довольны проектом и полные энтузиазма принялись за его реализацию. Совсем скоро живописный интерьер с картинки станет домом для счастливой семьи.

