
Большая семья в полном составе решили переехать в новую квартиру в Санкт-Петербурге, а нам предстояло создать для них комфортное пространство. Создание дизайн-проекта осуществлялось удаленно, так как на момент обращения заказчики только собирались переезжать из другого региона.
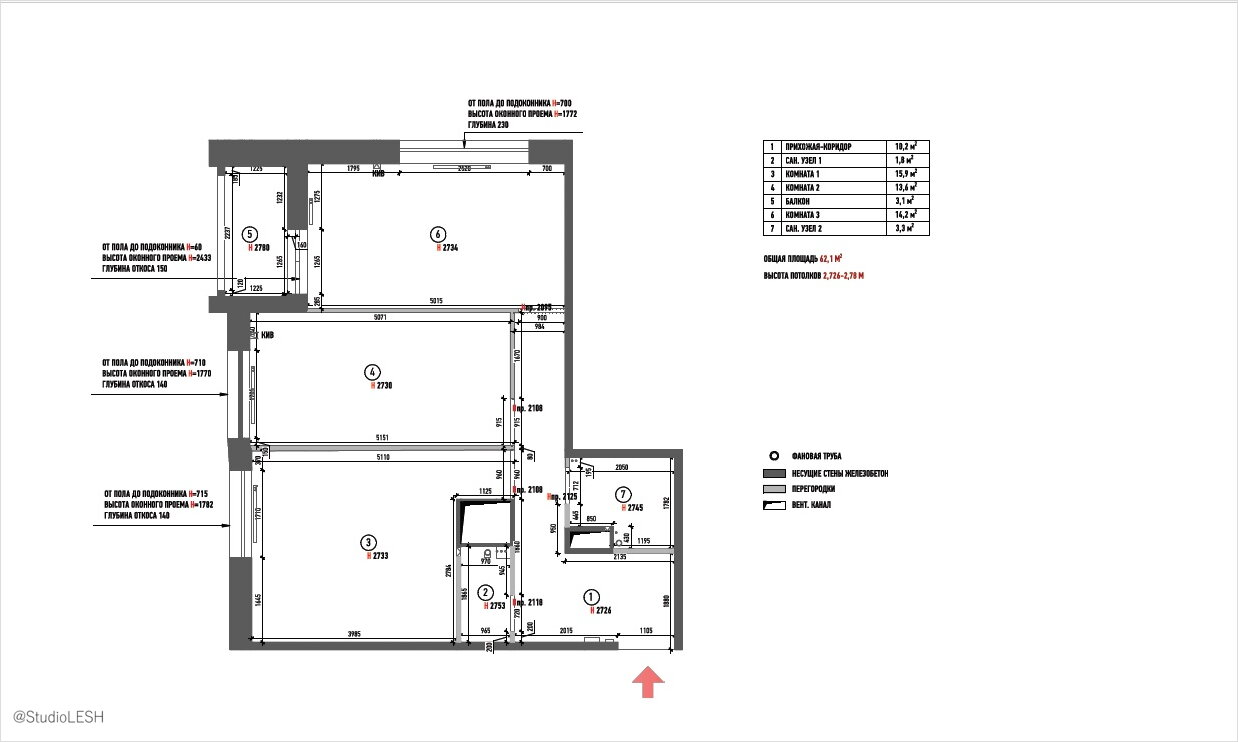
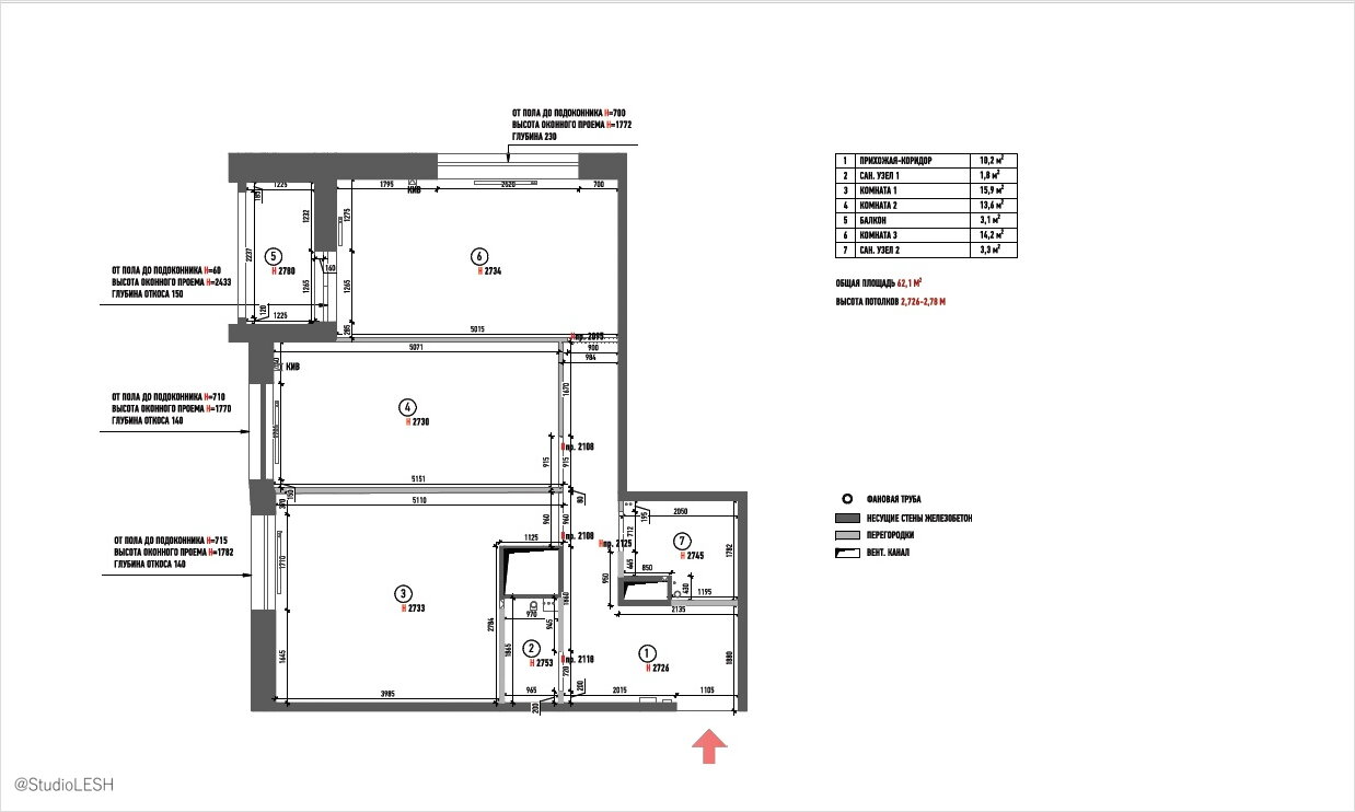
Квартира была сдана застройщиком, как стандартная двухкомнатная квартира, куда и переезжают наши заказчики. Задача состояла в том, чтобы организовать пространство в 61 кв. м. для семьи из 5 человек так, чтобы каждый чувствовал себя комфортно.


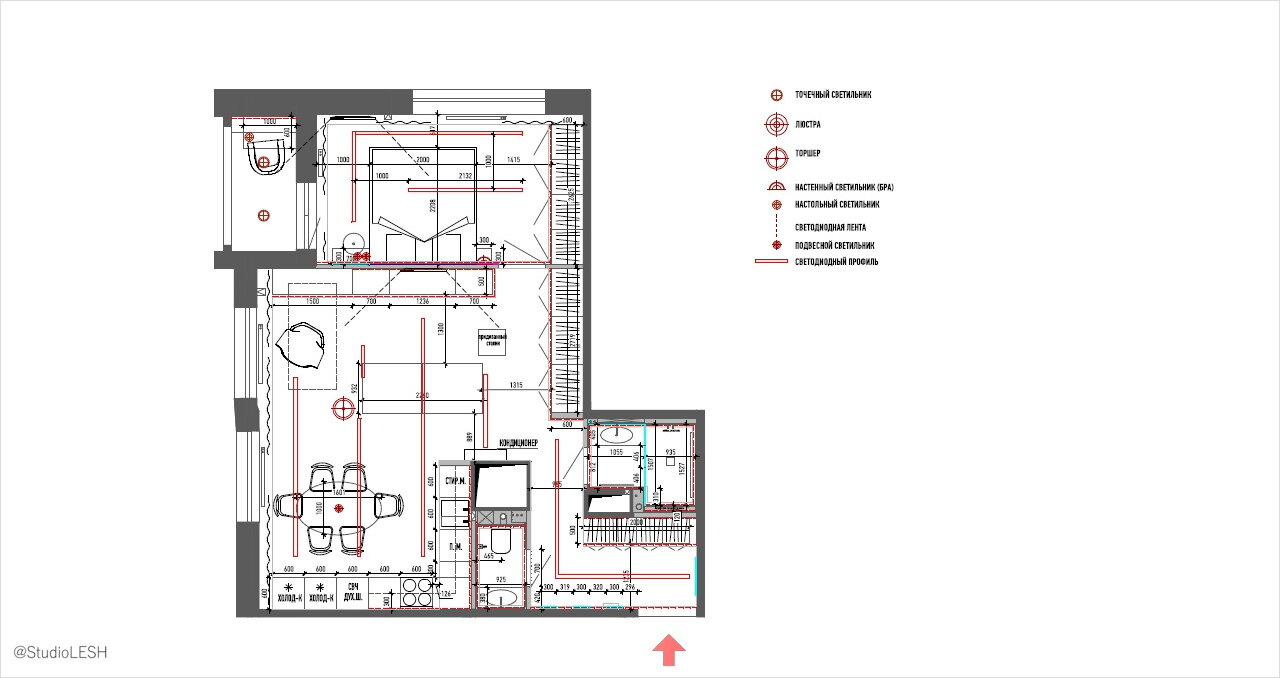
Чтобы создать пространство для всей семьи мы переиграли планировку: демонтировали все перегородки и возвели новые, которые отделяют спальню родителей, а кухню и гостиную объединили в одно просторное помещение.
Гостиная-трансформер

Трое детей подростков - это целая экосистема внутри каждой семьи и для каждого нужно сделать пространство для занятий, хранения вещей и конечно спальное место. Из-за размеров квартиры выделить детскую не представлялось возможным, так как хотелось сделать квартиру свободной от лишних стен и перегородок. Таким образом было решено организовать детскую в гостинной, при этом сохранить атмосферу гостиной и сделать её минималистичной.

Для организации места для хранения вещей были установлены три шкафа для каждого из младших членов семьи. Чтобы скрыть их объем, они встроены в стену и занимают пространство от пола до потолка, поэтому вместительные.
Тумба под телевизором помимо своего прямого предназначения теперь представляет собой два рабочих места, чтобы детям было удобно делать уроки и заниматься своими делами.

Чтобы сохранить минималистичность и сделать дополнительное спальное место, в закрытом модуле рядом с окном появилась кровать трансформер: помимо механизма позволяющего освободить пространство в комнате в ней предусмотрены полки для личных вещей и дополнительный свет в изголовье.
Подвесной шкаф
Прихожая - это первое помещение, которое мы видим при входе в квартиру и именно оно создаёт впечатление. Переменчивая погода в Санкт-Петербурге предполагает организацию прихожей таким образом, чтобы одежда и обувь были по возможности максимально скрыты, чтобы не создавать хаос на входе в квартиру.
Небольшой объем квартиры и большое количество верхней одежды для всей семьи также предполагает необходимость вместительного шкафа для хранения. Поэтому при входе в квартиру располагается большой шкаф для хранения всей верхней одежды семьи.

Сам шкаф выполнен в светлой гамме и поэтому сливается со светлыми стенами квартиры, что визуально прячет его габариты. Шкаф представляет собой подвесной конструкцию, которая подсвечивается снизу светодиодными профилями, что создаёт впечатление невесомости шкафа, а также создает дополнительное пространство для обуви под ним.
Кабинет на балконе

Еще одним из пожеланий заказчиков было создание рабочей зоны в спальне. В спальне также располагается выход на балкон, что дало нам возможность предложить организовать рабочее место там, чтобы не перегружать комнату отдыха дополнительными предметами мебели, которые будут занимать пространство.
Балкон был утеплен, чтобы там можно было работать в любое время года. Здесь установлен удобный рабочий стол из дерева, вместительные шкафы для рабочих принадлежностей и несколько уровней освещения для разного времени суток.

